蘭亭棲云裝修進行時,很快就可以一個人獨居啦!
家里裝修起于論壇,怎么說呢,就是通過咱昆山論壇找到的心儀裝修公司,一切順利開啟中,是我運氣好還是我判斷力不錯呢。
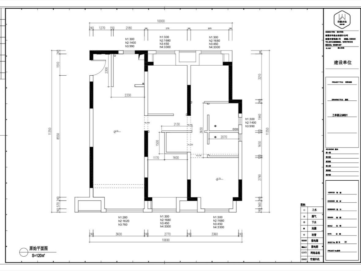
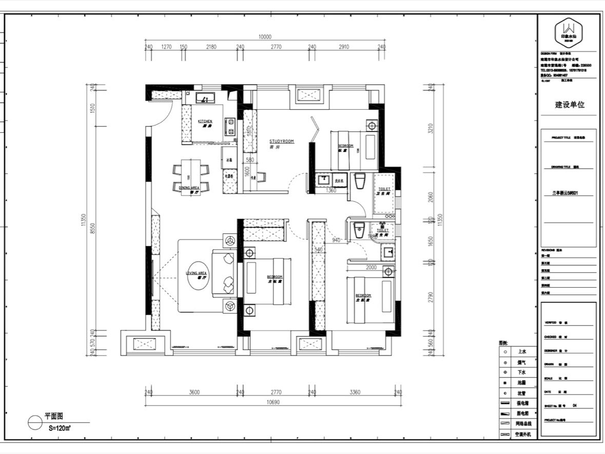
面積120平 現代極簡
目前裝修進度:瓦工結束,美縫安排中,木工安排中
裝修公司:印象水仙設計(設計+施工)
這是1月開工照,紅紅火火的先放開頭說。新家裝修,記個流水賬。


論家里的設計方案,我很是滿意,我老媽也非常認可。
原本的四室改成三室,客房空間亦可做獨立書房,兩全其美。


之前隨拍的水電施工現場,我是不大懂,還好我家里人懂一些裝修,他們挺認可,那我也沒話說。






衛生間防水OK


瓷磚鋪貼結束,美縫上膠中!





面積120平 現代極簡
目前裝修進度:瓦工結束,美縫安排中,木工安排中
裝修公司:印象水仙設計(設計+施工)
這是1月開工照,紅紅火火的先放開頭說。新家裝修,記個流水賬。


論家里的設計方案,我很是滿意,我老媽也非常認可。
原本的四室改成三室,客房空間亦可做獨立書房,兩全其美。


之前隨拍的水電施工現場,我是不大懂,還好我家里人懂一些裝修,他們挺認可,那我也沒話說。






衛生間防水OK


瓷磚鋪貼結束,美縫上膠中!
















































