本期案例
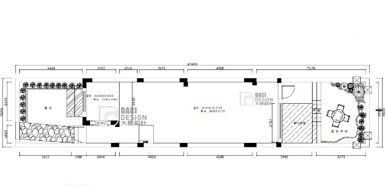
項目地點:江南境秀19#1**室
項目類型:四房二廳一廚三衛二陽
項目性質:全案
項目面積:184㎡
項目風格:現代 輕奢
首席設計:王工
設計組:DACI全案組
設計理念
溫柔的觸感、自然的光線、暖洋洋的爐火,一個讓心靈休憩的角落,一處讓孩子孕育夢想的小天地……
這些與人們日常生活和內心貼近的元素,才是一座理想住宅最不可或缺的元素。
原始圖
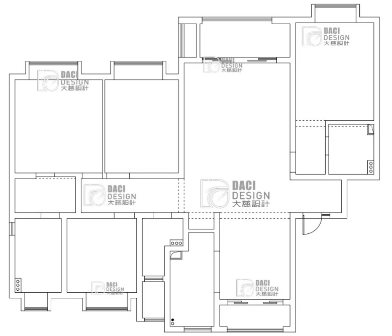
▲設計圖
本案業主兩人對房子的設計喜歡簡潔帶有一點奢華高級的元素,但又不要過于冗繁,對功能要求較高,儲物空間要求較多。
業主是通過介紹找到大慈,信賴大慈的設計和施工,以及整體的把控落地能力,最終選擇我們,經設計后,對空間功能進行重組,優化布局,極大限度的滿足了業主需求,呈現出明亮、干凈、整潔的空間,并運用色彩、材質的碰撞,流露品質。
客廳
電視背景墻采用大理石與桃木相結合的展現形式,簡約有層次。
大理石材質的電視背景墻與桃木邊柜形成較強的視覺沖擊,木色給人以自然,中國風的背景畫面清新淡雅,溫潤有力,沉靜中帶有一絲柔和。
餐廳
餐廳的裝修延續了客廳的主色調,依然是大面積的采用淺灰色來進行整體裝飾。而白色大理石餐桌與淺灰餐椅正好相搭,原木色的儲物柜置頂設計,將空間層高充分利用起來,增加了餐廳空間的收納功能。線型吊燈掛于吊頂之下,色彩與儲物柜相互呼應,為餐廳增添了很好的溫馨之感。餐桌上再配以精致的餐具,并擺上幾束活潑的綠植,讓自然的生活氣息充滿整個餐廳。
主臥室

主臥套房內設起居室、衣帽間及主衛,各功能空間呈開放遞進式布局,室內依然以黑白灰為主色基調,用一些低飽和色的小配件打造奢華溫馨氛圍,如淺咖色皮革、紋理感強烈的壁布與黑色鏡面碰撞,都市格調感油然而生。
次臥
兒童房
掃二維碼欣賞720全景
【聯系我們】蘇州.昆山大慈裝飾設計工程有限公司
深耕昆山十多年,落地設計,口碑見證,昆山不大做的是品牌和圈子
設計中心地址:昆山玉山鎮九方城保利地產大廈1704-1710室
展示中心地址:昆山玉山鎮九方城保利地產大廈1706室
電話:0512-57779948、QQ:958938158 VX:18551100785
〓大宅、別墅、商業、高端私人定制團隊〓
更多精彩作品案例請點:[url][urlend2]
[ 此帖被大慈裝飾在2023-03-24 16:28重新編輯 ]