錦溪自建別墅,現代感與輕奢美共存
美家信息 Information
房屋信息
設計 | Design :朗通設計團隊
施工 | Construction :朗通施工團隊
地址 | Address :錦溪自建別墅
面積 | Area:460㎡
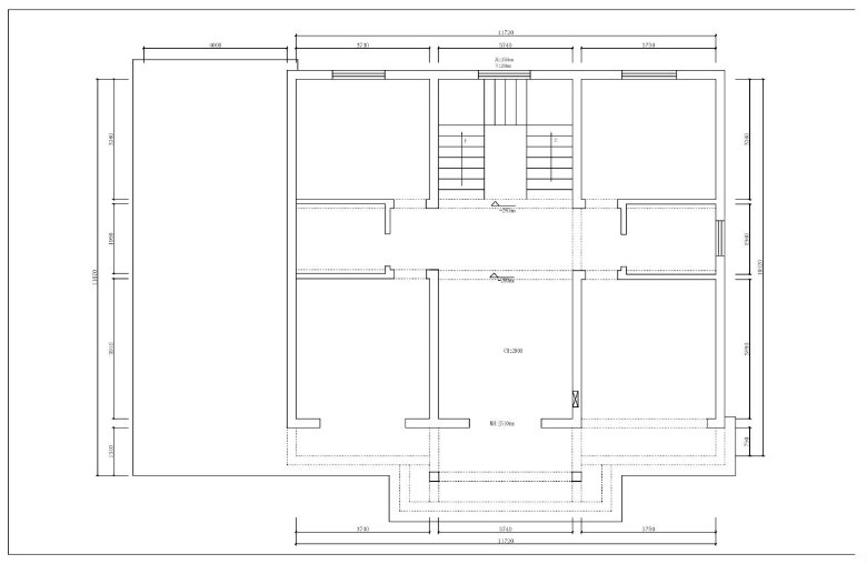
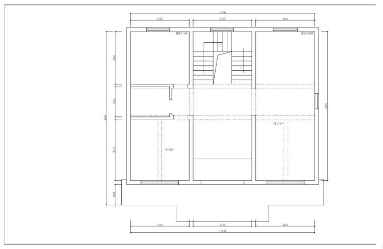
戶型圖:




設計理念 Idea
客廳、餐廳、廚房、......設計師重新賦予空間更流暢的動線,更多元的生活形態,更具互動式的情感鏈接。清新的空間配色與設計相得益彰,精致中帶有摩登美感。


追求輕奢生活的人,更多的是在品味生活。
如今,輕奢的理念更深入于居住中,
住宅越來越被大眾所接受并追捧。

[attachment=5448756]
與此同時,以“低調”、“優雅”、“舒適”、
“不累贅”為特征的輕奢風開始走進高端住宅設計領域
并有指引室內設計風向的趨勢。

|